


Project : Hello Museum Play.C Proposal
Architects : Jangwon Choi(Farming Architecture) + Kyungmin Kwon(PLAIN WORKS)
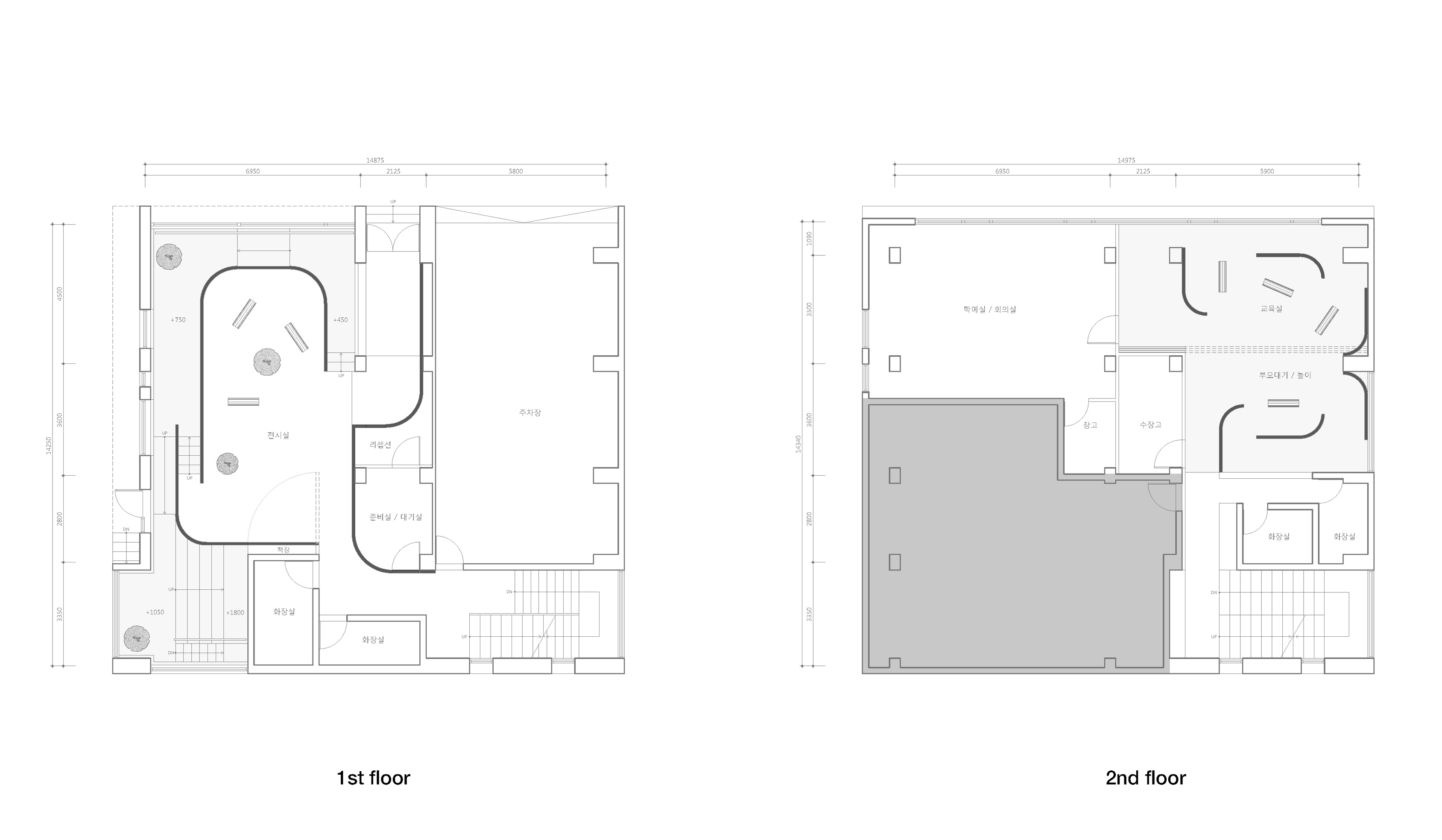
Design stage : Schematic Design
Type : Interior
Location : Geumho-Dong, Seongdong-Gu, Seoul, Korea
Built Area : 250m2
Building Scope : B1F- 2F
Design Period : 2015.3 - 4